Book your consult before November 28th, and get a FREE digital layout of your new kitchen or bath.
DaysDays
HrsHours
MinsMinutes
SecsSeconds

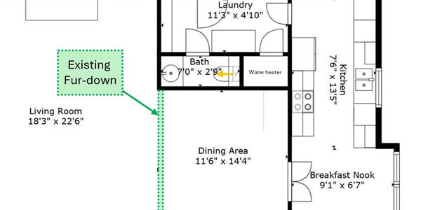
We begin by using your existing floorplan in order to make sure the adjustments we make are to scale and feasible.

Here we used the existing floorplan to create a new floorplan. We also added square footage to the home adding additional space and value to the property.

We also offer side profile design layouts that show what your bathroom or kitchen will actually look like. These are the pieces needed to really allow you to make the best decision for your home.
We use cookies to analyze website traffic and optimize your website experience. By accepting our use of cookies, your data will be aggregated with all other user data.